-
【筑家团NO.91】说说你的家政保洁阿姨 你家收拾得还满意吗?
现代人生活节奏很快,很少会顾及家务活,导致自己居住的房间往往凌乱不堪。也正事这个原因让家政服务行业变得越来越发达,聘请保洁阿姨为自家服务确实是一个不错的选择! 但是因为目前家政服务行业参差不齐,保洁阿姨素质也有高低,房屋面积大小差异,以及服务质量的要求不同,市场上面的报价也各有差异!所以很多业主不知道自己应该聘请哪家公司的哪位保洁阿姨? 对于一个保洁阿姨来说,首先要手脚干净,做事细致,收费合
居家小兔 2014-08-18 10:59354848 81
-
温柔而高级的极简风[转圈]
49767969 2021-12-21 10:252311 8
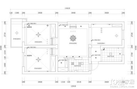
-
手绘图
51187943 2021-12-15 13:481255 9
-
有谁知道的告知下???告知告知
最近北欧E家有没有大型的活动啊?
48197983 2022-03-22 14:193527 2
-
【2022日立中央空调杯】135㎡现代美式|高级亲密感
房子基本信息地点:江南国际城面积:135㎡项目风格:现代美式设计师: 方俊钦装修公司:麦丰装饰 讲在前面,我是一个非常较真,非常谨慎的人,所以在装修上对细节的要求也比较严格。起初在网上咨询麦丰是在2017年中旬,经过方俊钦设计师的多次讲解,我了解了现代美式风格,也学到了很多装修知识。在2017年10月初步确定了装修由方老师来进行设计。因为我的个人原因,并没有要求马上动工。差不多到2020年我才开始
51168548 2022-02-24 16:23720547 80
-
89㎡现代法式公主堡,两室两卫任性改一室一卫
家是治愈一路漂泊最好的良药。 多年的积蓄再加上父母的资助,终于有了属于自己的房子,虽然只有80多方,但家是不分大小的。 就像朋友圈的感慨一样,希望自己以后有生的日子,天天快乐。 新家的第一顿饭,当然要邀上三五好友辣~ 小区: 黄龙金茂悦面积: 89㎡风格: 现代法式户型: 两室两厅装修投入:硬装15W,软装电器15W装修公司:恒彩家装 当初其实找了好几家装修公司上门量房,看设计方案,和郭郭设计师
46812295 2021-12-30 15:3833592 80
-
电视机背景墙后面竟还别有洞天
谢谢版主大大 我做的是公务员,她被迫做了儿童教育,家里面是有两个儿子,孩子的家庭作业,孩子从小到大,不管是教育上,还是生活饮食上,都很费心。男人带娃只有三件事,哭了就看电视吧,捧起来举高高了,带你找妈妈去。现在孩子都已经过了这个年纪了,都开始上学了,要开始辅导孩子学习了,以前上学总是说学这个方程式又没有什么用,没想到以后还是用上了。 回归装修设计,装修公司是同事推荐,设计上都还满意,项目经理
49828110 2021-11-07 16:49106626 80
-
微水泥,最新流行元素来袭啦
微水泥,最近两年席卷中国,很受广大青年爱好者的广泛关注并应用,它的特点是环保,结实无接缝,墙地一体化,硬度非常好,且根据客户的需求定制出各种颜色质感哦,现在不仅仅是室内地墙面的高端改造,室外也是杠杠的,防水防潮都没问题的,选择微水泥一定会给您带来不一样的体验,别样的惊喜
45207008 2021-06-24 13:452478 3
-
【2021秀家大赛】INK的家
装修这件事,装完都说希望是这辈子最后一套。但是真的装完了 ,看着成果,酸甜苦辣又涌上心头,仿佛盼着孩子长大,又不希望长大,感谢装修公司,严设计师项目经理的付出,我只要负责买自己喜欢的 东西,细枝末节的都不需要我来操心。但是装修的再好的房子,也要看和谁住在一起,对吗,我们的3扣之家,会一直温暖下去~ 房子比较小,只有60方,在找装修公司这一块花了点心思,找了好几家,最终是选择的墨缘装饰,第
35113874 2021-05-19 10:3422340 80
-
【2021秀家大赛】拆拆改改,颜值却很逆天!!!
每个人对生活的方式不一样,态度也不一样。更多的是一个心境的不同。每个人在不同的岗位,不同的生活习惯,不同的生活环境,对于自己独立空间的想法也不一样,所以设计本来的面目该是每个人最内心真实的想法。 设计师让别人最快认识的方法,是一个好的设计能得到大家的认可,当然还有尽心尽责的把自己设计师本职工作做好,让业主满意。让更多的人知道这个设计师的设计很牛,人也很不错,不管是追求设计的,还是想把房子交给一个
33581261 2021-02-28 17:1458260 80
-
【2021秀家大赛】I love to travel 武林国际180方 ~现代简约风
这套房子其实买了蛮久了,随着小孩慢慢长大了,不管看哪里都感觉好小,18年上半年就考虑把这套装修好,放个半年就能入住了,本人还是比较喜欢简单点的风格,不喜欢常规欧式美式比较繁琐的这些风格,房子面积还是比较大,所以想着尽量显得大气、能更好的突出空间感。同时,在功能方面需要考虑周全。 房子整体的色系采用黑白灰加上一点金属元素贯穿了整个案例,两种颜色相互碰撞形成鲜明对比,给人温暖又静谧的双重体验,尽量以开
45343192 2021-01-03 15:0759294 80
-
89㎡奶油中古风,偏爱旧时光的温柔质感~
对于89㎡的刚需户型来说,不必追赶潮流,用喜好一点点填满新家,偏爱旧时光的温柔质感。 推门而入,浅杏色和胡桃木包裹视线。双眼皮吊顶,天花板只以石膏线勾勒简约轮廓,搭配圆润弧度的拱门,复古感瞬间拉满。 客餐厅是小夫妻喜欢待的地方,阳光透过单层金刚纱帘,在浅胡桃木地板上洒下斑驳光影。客厅C位摆放一张软糯造型的真皮沙发,毛毯懒懒地搭在地上,让人想窝进里面。 背景墙挂上木框装饰画,给大白墙稍作装点。地毯上
铭品DESIGN 2026-01-09 19:0536468 4
-
93㎡红色奶白系!美式复古开放式绝佳~
业主是一位花店的店主,平常就喜欢美的事物,对于装修也有许多自己的想法。对于施工的落地效果,业主的品味也占着很大的比例。不得不说 美式复古装修,仿佛走进了老电影里的美式浪漫。配上复古家具。温馨而不失格调,每一帧都值得截图留念。 项目地址 / Address:逸品春江设计施工 / Co :铭品装饰风格 / Style:美式项目面积 / Area:93㎡ 客厅以复古风为主调,棕红地砖搭配米黄墙面,色彩
铭品DESIGN 2025-05-21 14:4729076 4
-
院中池塘养几尾鱼,为生活充满了无限诗意
当阳光照下来,水波纹和鱼的影子在空间中自由流动,如同天然形成的动态水墨画,成为独一无二的自然点缀。 鱼和树两者奇妙的和谐,抬头望去与眼前水天一色的景致相互映衬,美得令人窒息,有如沉浸在水底般的祥和宁静。
木東造园321 2022-04-23 14:367902 8
-
装个组装柜,我觉得自己有些手残。
家里的柜子已经这样了,是不是该换了?别问我为什么用到这种程度才换,问就是穷,换不起。不过,这样的柜子已经连灰尘都挡不住了,不得不买了,于是乎,拼夕夕40块钱,我忍痛剁手买了一个新的。终于到货了。各种材料,教程先准备好,准备开始下手了。刚开始,我是挺自信的。折腾了二十分钟,就装了这么多,我才发现自己确实有点手残。经过不懈努力,第一层终于装好了。我觉得难装不是我手的问题,肯定是这棍子的问题。嗯,一定是
鸦神道人 2021-09-23 15:552976 8
-
【2023日立中央空调杯】120方市区父母房翻新变我们小夫妻的婚房
这套房子位于市区,也是我自己从小到大的住所,爸妈的排屋找的城建装饰,整个设计和施工的过程都比较愉快,苑老师的设计会围绕我们的居住需求再加上他自己的设计理念。苑老师先给我们免费规划了一个平面方案,方案落地,让我和我的爱人都觉得非常贴合我们小年轻的居住理念,所以毫不犹豫的婚房再次交给苑工他们原班主打造。结合我们的工作性质,我们需要宽敞的居家办公的地方,我和我爱人都要有自己的一个电脑工作空间,我们还定期
49704398 2023-04-11 10:3259280 41
-
【2022日立中央空调杯】85㎡会呼吸的北欧原木风,餐厅里能睡觉
当初房子交付之后一直在各个装修平台看装修公司,总之格局特色但是又感觉差点意思,偶然间在19楼的秀家推荐上看到一个楼主分享的家,看到的第一眼心里瞬间闪现“惊艳”两个字,后来私聊这个楼主了解到她们家是在铭品装饰装修,去到他们总部门店给我的第一感觉是气派,属于是大公司的大气,当天跟设计师当面聊得感觉还不错,过了几天就约时间看设计图了,整个体验可以说是非常愉快,差不多在接触一周就签了合同。我目前是一个人住
42497559 2022-09-02 14:43614041 79
-
【2022日立中央空调杯】89方,定位日式的居所
先附上我觉得光影很美的一张图。 我一直想要找一个懂我的想法的设计师,看了很多国内的日式风格的设计,大部分看上去很廉价,不是我想要的感觉。自己也是做建筑相关的,知道设计图纸到落地实现中间需要有一个懂行的人来把控,确定了要找杭州本地的设计师,方便对接,再进一步缩小范围在有日式案例的设计师之间对比,看了几家方案之后,曹工给的想法还蛮有意思的,但当时觉得虽然是一个人住,需求还是得按三个人的来设计,
51274221 2022-03-09 22:2265544 79
-
【2022日立中央空调杯】面积虽小五脏俱全,66㎡承载杭漂一家三口
我一直认为,每一个努力生活的平凡人都是伟大的。 在杭州这座城市,我和每个人一样,都在为更好的生活奋斗,所幸一切都在往好的方向发展,前年终于凑够钱买了这套二手房,不仅结束了和老婆的租房生活,更是考虑到孩子读书的问题。 房子不大,66平的两室一厅,希望自己有能力以后换大房子,所以装修预算并不高。房子虽小好在还算方正,每个空间都比较规整,我们对装修的诉求也就是尽量提高空间的利用率,尽量多做点柜子。 定
33583226 2022-01-19 10:4980510 79
标签简介
你家装修花了多少钱?装成了什么样子?快来晒晒吧!



