-
现代简约风,打造纯白的世界
小区 | 山水如画项目面积 | 72㎡项目风格 | 现代简约风 客厅:餐厅:阳台:主卧:次卧:小房间:洗漱区:
51364569 2022-04-22 19:587273 7
-
这大概是互联网人最爱的一等奖作品!!!
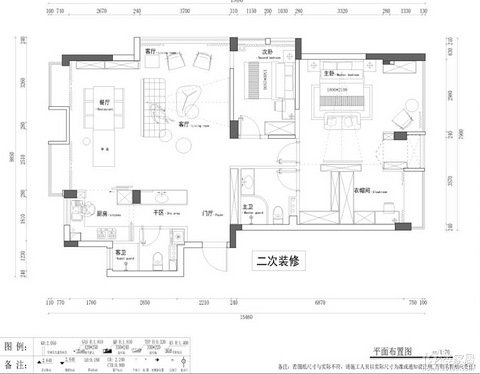
小屋简介: 小区:新西湖小镇 面积:118平方楼层:23楼 风格:现代北欧 施工:奥林装饰(半包)设计总监:田成丰 施工费用:13.1万 软装花费:20万获奖证书 首先放上我家的平面布置图: 平面方案当时和田设计师讨论+修改了N次后才确定的。经验告诉我,前期设计多考虑自己的需求,设想未来几年的生活场景,这样才能改到最符合自己的方案。我和我老公都是互联网行业,众
50684192 2021-07-08 10:1926442 55
-
理科生旧房改造之后的美式风,你是值得拥有的~~~
城市喧嚣 将心安放于平淡中才能感悟生命的本真在静好中尝尽人生的百味 给心留一点空白不让心因疲惫而荒芜了所有的付出 在视觉上舍弃张扬,通过对线条与色块的巧妙应用,让人回归生活的本真与轻松。于轻纱帷幔下安于一隅,欣赏繁华盛世的宁静淡然,是岁月的沉淀,更是生活的自由安然 整个客厅以简单大方的现代美式为主,简单整洁的电视墙与沙发墙,沙发墙上挂一幅大方优雅的装饰画,搭配上舒适精致的布艺沙发和单人沙发,显得简
亚加装饰始于1994 2021-04-08 14:295242 4
-
一家三口静诉美好时光120方pickpick
先来solo一段设计师的发言“作为设计师,在设计的过程中需要无数次的去想象、感悟这个空间里的生活,而家的作用就是缓解外在的压力与喧闹,让家成为身心轻松的栖息之地;设计师更是那个应该懂得生活的人,用自己的设计传递更好的生活方式。”感谢咱们家的设计师运用了他的理念来让我们的生活更加贴近梦想!!!小区名:定山西苑户型:三居室面积:120方风格:简约轻奢装修投入总投入:40W我们是通过朋友家介绍的推荐找的
32809992 2020-05-20 16:4935238 55
-
108方‖桂林家乡之气的极简之风
随着国家实行全面二孩政策,越来越多的青年夫妇逐步迎来多个孩子的家庭生活,研究适应时代发展的人居空间。房子的过去是一套四房一厅的精装交付公寓,巨大的客厅是建筑设计诗意的留白,厅大而房小,无奈之下显得冷清。我们期望在这里能有两个孩子自由活动的天地,更能有家乡桂林的山水形神。 要求明确了 就开始找装修公司了,其实找装修公司的历程比较简单,装修公司是同事介绍的,他们家前年装修的,说设计师和公司还不错,虽
33250363 2020-03-22 10:2552196 55
-
120㎡独居男孩的住宅,超大餐厨区满足想象
@装修美少女 关于我:当初挑选装修公司的时候看了很多家的设计,最终还是恒彩的徐芬老师更能戳中我的痛点,所以我们之间合作的非常顺利!!! 先说说我家房子吧:1、原户型是一个四房户型,其中隔断墙较多,给人压抑感强,鸡肋空间也比较多,不太好做空间规划,所以这方面痛点是我尤其希望改变的现状2、我还需要一个书房能够兼顾客房的需求,满足我的功能性需求3、厨房需要蒸箱,烤箱,洗碗机,大双门冰箱等丰富的厨电设备
46882215 2022-12-30 09:5390655 58
-
【2022日立中央空调杯】150平现代极简风天花板!!!
看腻了千篇一律的现代简约,我就格外钟爱黑白极简的低调奢华感,所以拿到新房之后,我就立马跟我的设计师沟通了我的想法。我打掉了好几面多余的墙体,不仅做了开放式的厨房,还做了客餐厅一体和开放的小书房。因为我家目前就我一个人住,所以我就只考虑自身的情况。反正装修后的效果,我很满意。 【小区名称】:龙禧港 【户
40082672 2022-11-08 15:4542149 58
-
90后留学女孩94㎡日系暖宅
生活在城市里的女孩,都渴望拥有自己的家。房子不必太大,但需要装下全部喜好、容纳所有偏爱、治愈一切不美好,成为舒适与自在的代名词。 今日分享的作品以温暖质朴的木作定调整个空间,居于此,仿佛瞧见了小桥流水的恬淡画面,耳畔也送来一曲悠扬小调。 坐标丨美和院面积丨94平方米风格丨日式半包丨12万设计师丨圣都家装 朱涵麒需求 | 屋主是一位90后小姐姐,之前曾留学日本,偏好治愈系日式风格;崇尚功能主义,区域
51480219 2022-09-13 15:12569463 58
-
装修
我家现在装修已经结束了,也已经入住了,今天来跟大家分享一下我家,怎么说呢,装修毕竟是件大事,自己肯定要谨慎考虑才行,铭品的设计师他是仔细量好房子,然后再看一下一些细节的地方,以后再过来跟我沟通、询问我的意见、其实我提的要求很不合理他也会想办法帮我解决,给我提一-些见解、给人感觉很舒服、设计的方案完全在我的点面上了,而且还做了一些很新颖的变动,设计很满意、在王老师的引导下我参观了公司、无论是规模还是
51494974 2022-08-11 18:038233 6
-
【2022日立中央空调杯】160㎡现代质感空间,大平层装出别墅范儿
前几年家里有了二宝,随着他渐渐长大原本的房子的布局就显得有点局促,我和我老公就商量给房子进行一个改造。我们也一直没想好怎么去布局房间,因为本来就是三室两厅,不想对整个房间进行一个大的改动,然后家里老人可能就是带孩子期间会过来帮忙照顾一下,所以三个房间对我们来说已经完全足够了。因为我老公比较喜欢收藏酒以及喜欢品茶,所以希望能够有个单独的酒柜,还想拥有一个品茶的地方。确定了想法之后,我们就开始接触装修
50779999 2022-04-29 15:0513194 16
-
老破房翻新
48802977 2021-12-19 21:171813 6
-
我姐给我装的家,全屋都是带智能的!
19楼的小伙伴们大家好,我是做设计的姐强烈要求来这里发帖子的。。。看在姐为我家劳心劳力的份上,我就勉为其难的给她发一条吧,房子是90方,我一个人住刚好,作为同时拥有宠物店长和酒吧老板双重身份的我来说,家里简单就好,我喜欢灰色调的,所以我老姐就给我装成了现在这个样子。家里装全屋智能主要还是比较喜欢科技感一点的家,所以前期就提出了这个刚需!那么我给大家简单介绍下我家,各位看官里边请 进门我只要喊小爱
50797892 2021-10-29 16:0130019 58
-
黑白LOFT的装修,玻璃栈道+弧形吊顶真的酷
简单介绍一下家里的房屋信息地址:丽晶国际面积:80㎡风格:现代简约设计施工:铭品装饰户型图 1、整个氛围干净简洁,沉稳大气,色彩装时上,无需过多的点缀,着重强调黑白的关系2、一层暗门的设计让空间更加具有整体性跟隐私性3、楼梯的灯带提供了照明同时增加了美感玄关 玄关以黑色白色为主,形成对比,内嵌的顶灯设计,通过灯光创造一种深度的印象,玄关墙放置了黑色鞋柜,给鞋子提供充足的空间,台面是光泽感十足的房屋
47619438 2021-08-30 16:4634265 58
-
【2021顾家家居杯】红色为主的我家,打破你对颜色的刻板印象
说起来我家里面的色调是以红色为主,相信大多数人的第一反应是:是不是太艳过于落俗?容易审美疲劳只是一时新鲜吧?会很土吧?脑海里出来的一连串词估计想必都不太友好。如果是没看过效果图的我也会有这种担忧,但在看过设计师出过的效果图方案之后,很坚定地确认了这版方案,这件事情对我来说印象还算蛮深刻的,打破自己的刻板认知,不要过于固执拒绝任何可能,也许是打开一个全新的认知。 户型:三室两厅面积:123方风格:I
48742661 2021-08-15 20:0226157 58
-
从出租房到温馨的家,爆改满足未来9年xq房
整体软装丨朴森整体软装项目地址丨杭州·河滨之城项目户型丨三室两厅设计风格丨北欧混搭面 积丨89m? 做父母的对于孩子的教育环境总是会有忧愁,对上下学的安全也很担心,所以我才买了河滨之城的学区房,这和我们工作的地方是一条线,方便我接送孩子也不耽误工作。虽说是二手房,但为了住的舒适心情美丽,我们决定敲了重新装修。先自己去逛了,东西太多挑花眼,而且都不太满意,还有自己去管理,太麻烦了,所以挑一家能都全
46200701 2021-03-15 16:5139799 58
-
是你喜欢的民宿吗,大人住的比小孩子还快乐
案例详情案例地址:余杭区径山镇四岭村具体户型:四层别墅空间配置:10房3厅10卫房屋面积:630㎡装修风格:现代轻奢装修公司:铭品装饰 设计理念该套案例的业主是人寿保险的分区经理,有一定的生活品质要求和审美能力,因此设计师推荐了代轻奢风格。该案整体以冷色调,大块面设计,房屋简约时尚、简洁大方并富有设计感的理念。 【客厅】客厅空间保持通透明亮,以明快的色调与平顶LED线性吊灯、木饰面材质、室内软装饰
铭品DESIGN 2021-03-06 16:2036384 58
-
嘿~我的衣帽间满足啦
2019年味正浓,刚开完年会,也给自己的家留一个印迹,我是一个懒人,懒人有懒人的福气,看到小区群里那么多闹心的装修,我很庆幸我遇到的团队及设计师靠谱(亲戚推荐的公司)网络上看到好多杨总监的作品。真的是工地上没操心让我毕业了~整体效果也是比较满意。#我的房屋情况#装修风格:现代轻奢小区:东方星城户型面积:90方(三室两厅)装修费用:18万(全包装修)设计施工:铭品装饰+杨环信设计费:10000材料费
49032991 2020-01-14 17:2549650 58
-
MHOO|金域三江100㎡现代原木:原木呼吸,留白生长
-金域三江100㎡现代原木- 原木呼吸,留白生长。晨昏在窗框间游移,几何沉入哑光褶皱。栖居归于本真空间褪去矫饰,让木的呼吸成为主角。在设计中定格自然叙事,每一道木纹都是未写完的散文诗,在现代框架中生长出无限的生命力。 本案设计师在空间规划上突破传统格局,以厨房、卫浴、餐厅构筑环形生活动线,实现功能区域的无缝衔接。 入户玄关处通过半遮蔽式墙体与定制柜体的组合,形成视觉缓冲区域,巧妙守护居者隐私。 左
麦丰装饰2007 2025-06-26 17:0713878 2
-
【2025日立杯】125㎡极简高级感拉满!我家的沉浸感100%~
我们家选择了铭品装饰,打算把原130方4房的户型爆改成2房的大平层,我和妻子特别喜欢最后的落地效果。尤其是设计师把入户处客卫干区的布局做出了洄游动线,颠覆了原有结构,让去厨房的动线更便利,也让我两的生活体验感提升很多。 餐厅设置了岛台,扩充厨房操作空间的同时,也让厨房和餐厅做了很好的衔接。 开放式布局,空间宽敞通透。白色墙面搭配浅灰色窗帘,简洁大气。深棕色的皮质沙发搭配米色单人椅,营造舒适的客厅区
吃阮不吃硬y 2025-03-05 11:2619436 5
标签简介
你家装修花了多少钱?装成了什么样子?快来晒晒吧!



