-
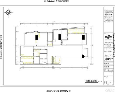
小户型装修 87㎡迷你豪宅,放大空间住出120㎡的舒适感
新家终于落成了,装修这套房子的时候我们正准备迎接家庭的新成员,那时候我们是通过小区业主群了解到王艳设计师,在关注了她整整一年的工作动态后,非常认可王艳设计师的设计能力和工作风格,才放心地将新家委托她来设计。 坐标丨杭州·江南学府户型丨3室2厅1厨1卫面积丨87㎡风格丨现代轻奢设计师丨王艳施工单位|圣都家装 王艳设计师给我们设计的非常亮眼。我们都非常的满意。话不多说我就直接上图啦~ 首先是我们的客厅
51115848 2021-11-03 15:5718651 27
-
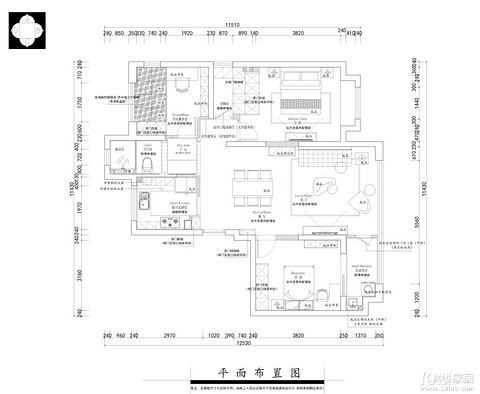
145㎡现代四居,素色也能搭配出优雅高级的家
户型解析项目地址 / Address:春波西苑设计施工 / Co :铭品装饰风格 | Style:现代简约项目面积 | Area:145㎡业主信息:业主喜欢简约风格、因为是自己亲戚是我设计的,见面沟通几次,感觉是他需要的东西。 设计理念:设计师通过和客户的沟通中,了解到客户的需求。设计师用现代简约轻奢风格来定位设计。深色大理石地砖的这些元素也正好迎合了时下的文化资产者对生活方式的需求,即:有文化感
铭品DESIGN 2021-05-21 13:406483 2
-
百年建筑翻新为“折衷?主义豪宅”,太颠覆了!
百年建筑翻新为“折衷?主义豪宅”,太颠覆了!
49767969 2021-03-26 07:044457 6
-
风范…黑色…
心动没
健身的香菇rr9061 2023-08-12 23:417478 2
-
200m?现代轻奢大平层,简约治愈归家的仪式感
业主马先生,家里5口人居住,子女在银行工作,平时两个老人居住,性格比较随和,热情,开朗。业主对房子风格的期待和需求:装出自己喜欢的样子,跟别人不一样一点儿,还原效果图。设计师根据马先生的要求,一层保留一个卫生间采用了三分离,扩大了厨房,进门的楼梯改动了位置,采用了网红楼梯步步高升,同时扩大了餐厅增加了采光和收纳,进门柱子的区域采用了虚浮的壁炉,增加了进门口美观性,二楼的主卧也加长了衣帽间,多了一些
都都设计 2023-08-04 15:566604 2
-
460㎡独栋别墅,功能房+套房分区搭配,简直是小区里的璀璨之星!
我家常住人口六人,夫妻+老人+两儿,本身我们就是做土建的,所以对结构的要求还是很高的。我们在需求方面也是有想法的,在房子布局设计合理的同时,一定要满足收纳问题,因为我的老婆衣服特别多,要有尽可能多的收纳柜……剩下就是一些小的需求,需要和设计师给一些建议。看了很多家的装修公司,但好在麦丰装饰的曹登峰老师,非常耐心,并给我的房子布局做了很多小亮点,接下来就和大家分享下我家的房子吧!基本信息:小区:海宁
51712466 2023-05-19 18:5052547 33
-
【2023日立中央空调杯】温馨人家130㎡原木风,简简单单就很美!
从买房到装修期间,一直找不到合适的设计师,之前我也找过挺多家公司进行对比,始终没办法满足我们一家子的居住需求!后来在朋友的推荐下,我认识了麦丰装饰的李怡欢设计师,本来抱着试一试的心态,和设计师讨论了自己始终如一的原木风,结果和设计师想法一拍即合,不仅设计的风格很让我喜欢,也满足了我对房子功能的需求。小区:温馨人家装修公司:麦丰装饰设计师:李怡欢装修风格:原木风 我的需求:需要三个房间,放得下一架钢
51696390 2023-04-19 18:5551909 33
-
大地色系#
50209845 2023-01-10 18:3624102 9
-
65㎡轻法式,原来小户型也可以这么仙!
小户型一样可以仙气满满,不会装的就来借鉴借鉴我的小家吧! 客厅 走进客厅,就能看到简约的线条和素雅的色系搭配,白色+灰色为主的色调,让客厅更显自然温润的美,再搭配艺术挂画和植物的点缀,让客厅拥有了一丝时尚轻奢感。 慵懒的夏日午后,蜷进蓬松的沙发上,泡一杯茶,选一个好看的电影,静静享受时光缓缓流淌的惬意与放松。餐厅 客厅与餐厅以开放式设计手法去诠释空间氛围,整个空间舒适而明亮。 餐厅的一侧墙面都设
51131065 2022-12-02 17:3644794 33
-
【2022日立中央空调杯】89㎡现代混搭,空间新玩法,让家妙趣横生
我对自己家的要求还是比较高的,不想随便将就,对于这个新家我的想法是具备舒适的居住体验,高颜值的设计及人性化的空间布局。我自己也是去了比较多的几家装修公司,良工的李美林老师就非常符合我的需求,能感觉出来她在设计上有比较独到的见解,并且巧妙的运用弧形,绿植,中古元素,削弱了空间本身的视觉屏障,打破传统的居家模式的局限,创造出了生活状态的全新感知。 //案例信息 项目名称|《极地妩梦》项目地址| 艺尚府
32800331 2022-11-29 11:1027540 23
-
【2022日立中央空调杯】滨江顶跃,侘寂之美
自在地听懂一切无声的语言 在家居设计中,合理高效的动线排布与空间美观的外在呈现同样重要,后者带来视觉的享受和心情的愉悦,前者则能让人在日常生活中,充分感受到便利性的存在,这正是人性化设计的意义。 设计还需要探索生活的本质和内核,去匹配居住者的多维高度。我们希望这个家既可以让业主享受宁静不受打扰的独处时光,尽情感受诗和远方,也可以容纳各式欢声笑语的聚会party,让激情有趣的生活故事去丰富空间的层
42721434 2022-11-17 16:1535641 33
-
快要装修了
来这里学学………
51544124 2022-09-20 16:558834 10
-
【2022日立中央空调杯】114㎡现代简约风,95程序员解锁时装代码
我和我老公都是程序员,可能大家对程序员的想法都还印象比较刻板,会用“格子衫”“宅”等词语来形容我们。其实我们也和大部分年轻人一样,喜欢美食、音乐、旅行和一切有活力的新鲜事物。我们选择的是良工家装,在经过多方比较之后,就定下了。对于新家我们也是有非常多的憧憬的,有想过许多风格,比如日式、美式、奶油风法式等,在脑海中也有非常多的设想,最后还是选择了简单清爽耐看的现代简约风,是想未来居住的环境是个舒适,
17766922 2022-07-06 16:14486964 26
-
【2022日立中央空调杯】120平开启白色童话般的家居生活
当爱情在这座城市生根、发芽,当遇见的风景都有人分享、倾诉,单调无味的日子也变得有滋有味。原来幸福不在远方,而在眼下。 本案作为男女主人的婚房,所有的设计都根据小夫妻的喜好和习惯来量身定制。他们对于理想家的期待有:①确保视觉效果的清爽感;②加强空间的互动性;③保留两间卧室,书房、衣帽间也得安排上。 坐标丨锦绣之城户型丨4室2厅1厨1卫面积丨120平方米风格丨现代简约设计师丨厉剑强施工单位 | 圣都家
51081385 2022-06-21 19:25493575 26
-
【2022日立中央空调杯】140㎡现代精装,被设计师狠狠浪漫到了!
浮世三千,吾爱有三。日,月与卿。日为朝,月为暮,卿为朝朝暮暮。 在富阳空置了十几年的毛坯房去年11月份装修完工,入住半年我才知道房子里藏着一个有关爱情的秘密——端景墙上方的吊顶,大圆小圆相互交集,意思是日为白昼,月为黑夜,而你是我的日日夜夜,是挚爱,是永恒。这个动人设计的灵感来源于这么一句话“浮世三千,吾爱有三。日,月与卿。日为朝,月为暮,卿为朝朝暮暮。”城建装饰的张设计现在提起来,真相才大白于
51323078 2022-03-29 16:4320483 33
-
122平现代轻奢风,也是抵达幸福的地方
在这个家,我们想看到了美是最真实的样子。如同艺术家对于色彩的理解,从感官印象到思维解构,最后到艺术呈现,色彩所承载的不仅是瞬时的情感表达,更是一种积极向上、探寻美的生活方式。原户型中一成不变的泛黄陈旧感,由爽净简约的白色所替代。在轻盈的底色上,软饰加载典雅蓝和暖意橙,营造极具视觉冲击力的品质感。长直型空间阔然敞开,开合出高朗尊贵的厅室风态。面积:122平方风格:现代轻奢设计加施工:亚加装饰花费:5
32827467 2021-08-13 14:4129906 33
-
125㎡轻奢二居,打造高品质的三口之家
户型解析项目地址 / Address:美丽湾设计施工 / Co :铭品装饰风格 | Style:现代轻奢项目面积 | Area:125㎡写在前面:本期案例居住者是一对夫妻,外加一个女儿,客户喜欢年轻不失时尚,低调又有气质的家具风格,设计师将此案定位于轻奢风,从硬装到软装都用“轻”字来包裹“奢华”这个张扬的气息。原始结构图平面设计图 设计亮点: 1.舍弃了一个书房,将公共区域设计成大平层的效果,连接
铭品DESIGN 2021-06-02 15:373308 6
-
MHOO|夕枫语·如沐春风140㎡现代居所
「夕枫语」 从启点出发,前行是孤独的旅行, 不要被任何人打乱脚步,没有谁会像你一样清楚和在乎自己的梦想! 01THE CUSTOMER DEMANDS业主需求 “家是用来享受的,一定要舒服!” 1、业主对公共空间效果比较注重,空间要大要开阔;2、整洁有居家氛围,收纳要保证好能隐藏起来的;3、需要2个房间和书房,不会有客人留宿;4、厨房使用频率低但是功能要匹配。 02ANALYSIS DIAGRAM
麦丰装饰2007 2021-03-15 10:357193 33
-
11万全包爆改64㎡老破小,小户型也能够成就理想家
项目地址 | Address:定安路37号设计施工 | Co :铭品装饰风格 | Style:现代简约项目面积 | Area:64㎡业主信息:业主不居住在杭州,所以要求在线上沟通设计方案,设计师担心网上沟通不能很清楚的表达自己的设计理念,容易让客户觉得没有设计感,抱着不安的心,设计师去认真的思考方案,并与业主大致沟通之后,获得业主的认可,业主提出要来公司,并且来公司的当天就交了定金。、 原始结构图
铭品DESIGN 2021-03-01 16:0812313 33
标签简介
你家装修花了多少钱?装成了什么样子?快来晒晒吧!



