-
【2022日立中央空调杯】120㎡现代北欧风治愈感爆棚,百变收纳
关于新家的装修风格定位,父母偏向注重我的感受和看法,再加上他们也比较时髦知性,所以新家风格倾向于简洁、明亮、舒适的北欧现代风格,还带点小资和文艺的腔调。我们一家人比较注重生活仪式感,希望新家可以不随大流,有自己的独特闪光点,所以这个家并未迎合主流审美和材料,良工的厉老师也很好地将我们想要的效果展示出来。 全屋以白色调为基底,用木色局部搭配,清冷中又带着温暖。空间大量的留白,让人有着无限的想象力,
50779999 2022-03-09 17:13499679 12
-
123㎡让飘窗甩掉鸡肋的标签 享受一抹春日阳光
哪个月份,哪个季节,并没有什么意义,只不过是时间流淌的证据罢了。向阳的花、翠绿的芽、肆意的日光没有一样属于冬日,偏偏我却想把他们全部送给你,带上马醉木捕捉冬日的温柔——陈小莉 本案为四室两厅户型,房东拥有两个大眼萌娃,所以全屋围绕着童趣展开设计,处处充满活力。 项目地址 | 中海枫桥里项目面积 | 123㎡户型 | 四室两厅一厨两卫主笔设计师 | 陈小莉摄影 | 姚学丰施工单位 | 圣都家装 【玄
50906909 2022-02-17 15:3615841 29
-
邻居秀家 | 兵哥哥转业做设计,89平三居室玩的都是隐藏收纳
厦门服兵役两年,辗转北漂五年,最终他选择了来杭州定居,并且把家安在这里。 李工的老家在安徽,和很多热血青年一样,他认为没有当过兵的人生,是不完美的。所以到了合适的年纪,他就去了厦门参军,在部队里过了两年军旅生活。 退役后,今后要做什么,成了他最大的选择难题。“本来想学当时很热门的游戏编程,但是因为我从小就对艺术创意特别感兴趣,思虑再三,还是选择了做一名室内设计师。” 在北京学习了室内装潢基础知识
好爱装 2021-12-29 14:3123343 29
-
房顶路台平移窗
上屋顶路台,方便有美观,欢迎来撩!!
39400303 2021-11-03 11:07817 3
-
90㎡迷你豪宅,敲掉两面墙拥有超大衣帽间,品质生活从不将就!
说起小户型,很多人都会联想到“逼仄”、“不舒适”,其实,如果设计得当,小户型也能逆袭成小豪宅。本案是一套小三居的精装房,由于户主希望拥有高品位家居,于是选择将这套精装房全部拆除改造。 全屋以开放式布局确保空间的开阔舒朗;采用无主灯的潮流设计营造高级灯光氛围;果断敲掉两间次卧的墙面,坐拥超大的衣帽间,品质生活从不将就。 坐标丨合肥·庐月湾户型丨2室2厅1厨1卫面积丨90平方米风格丨现代简约施工单位|
50906909 2021-09-16 16:4821544 29
-
89㎡两房变三房,现代女性婚房也要讲究性价比
婚房装修 我和男朋友的老家离得很远,又都不甘心去彼此的城市,一起去过好几个城市工作,深圳、南京、上海......最后决定在杭州定居,因为准备明年在杭州结婚了,又不想在老家的房子里办,今年就抓紧把装修的事情提上日程。 当时他有好多朋友都在杭州买房也装修了,我们几乎去每家都吃过饭,实际上是蹭装修经验,都说装修步步是坑,不小心点怎么行。当时也都加了他们设计师的微信,聊了设计和报价之后我们还是很犹豫,总
46812371 2021-08-12 19:2611721 29
-
【秀家大赛】现代中式结合的排屋,到处都是样板间!
户型地址:杭州昆仑府设计施工:铭品装饰设计风格:现代加上一些中式面积:600㎡空间:六室一厅吧设计师:唐琦老公在国外做生意所以没有时间陪我一起装修房子,前前后后找了四家装修公司,这家装修公司也是父亲的战友推荐的,父亲战友是铭品老客户了,装修材料是设计师与业主一起采购,设计师非常靠谱,软装施工主材也是一手参与的,开工差不多一年左右含土建一起。 进入之后有很多土建遗留问题!偶发性的屋面漏水,花园地面排
瓜虫@微信 2021-06-15 14:5724345 29
-
【装修案例】九鼎装饰|东海闲湖城(91㎡现代风俩口之家)
- 突破格局 创新美居 -设计方案DESIGN PLAN 地址 | 东海闲湖城玉屏湾 面积 | 91㎡户型 | 3室2厅1厨2卫 风格 | 现代常住 | 小俩口 设计 | 章依心 该户型91方,三房两卫两厅,所谓麻雀虽小五脏俱全。美中不足的是各空间显得狭窄而不够大气。设计师经过反复沟通,确认长期只有业主俩口居住,于是打通了一间次卧将几处公共区域连贯起来,做成10米通底的开放式格局,让居住空
浙江九鼎装饰 2021-06-03 10:4518211 29
-
89平日系丨收纳和颜值兼顾
【小区】:九龙仓君廷 【户型】:2室1厅 【面积】:89 【风格】:日系 【施工】:江水平装饰 平面布置图 玄关处进来家里首先看到的是书房的木质屏风+长虹玻璃的隔断,原木的色彩是整个家里住色调,一进家门就给人一种舒适感。 玄关进来的客厅,灯光模仿了影院的效果,做了点光源的设计,见光不见灯,让原本就不高的空间,在视觉上拉高了不少。背景墙很简单,两幅挂画就很好了,一般木栅栏试的隔断,很有日式气息。 书
50721486 2021-05-08 21:2713152 29
-
【2021秀家大赛】轻奢金属石材玻璃衣帽间单身也要精致生活状态
说在前面算是自己独立住的第一套房子,所以感觉上心里是自由飞翔的感觉。对新家的各种期望那是直接眼神就可以看的出来的,浏览各种指导的设计网站小区里面样板也看了个遍,休息的时候商场也去各种溜达,还做了个小功课……说真的 看的越多越对这个不知道怎么下手了……小区的样板房套餐是入不了眼 市场里的卖家洗脑太厉害有点怕,软装公司接触了几家后后来爸妈的建议下选了有实体陈列的,风格以我喜欢为主,安全保证已他们认可为
45752386 2021-03-22 14:0019195 29
-
宅男都i了的无主灯装修设计~
很高兴可以和大家分享我新装修的房子。作为一名宅男,我想要的家,是简约大气的,同时要有现代感的层次和质感,简约而不简单。然后我个人很喜欢打游戏,所以要求有一个舒适而又大的私人书房。 我对家的理解是下班后可以放松自我,卸下一身疲惫的地方。先总体看一下我的新家~ 整个装修风格都是很有质感的,并且家具和整体色调融合在一起,非常和谐。 房屋位置:光明领峰设计风格:现代简约房屋面积:130㎡ 这是我打算
烟花易冷qaq 2020-08-12 14:2825342 29
-
【2024日立杯】爆改中古风太好看了!看不出已经20+房龄了
我们小两口偏爱中式复古,新家也一定要有仪式感!买了市区的这套老房子,没想到装修完之后效果爆表!设计师在软装上选择复古款,木质与奶油碰撞、糅合,在微光虚实的意境中,引领着我们穿越喧嚣都市的表象,抵达空间艺术和感性的生活真谛~ 介绍下我们家的基本情况小区:丹桂公寓设计施工:铭品装饰风格:中古风面积:106㎡ 原始图 设计图 家具的材质强调自然性,温润的胡桃木,深棕色真皮,透气的亚麻布艺,多种元素与设
俊宝吃饭了 2024-10-31 15:2532269 25
-
一比一还原效果图,酷爱黑色系的真的得看看
项目地址 / Address:臻涛名苑设计施工 / Co :铭品装饰 风格 | Style:现代风项目面积 | Area:130㎡ 本案选用黑白灰和咖色作为主色调,使用金属色、木色和石材的颜色来实现变化; 对空间进行合理规划和利用,避免过多的隔断和拥挤感,创造宽敞、明亮和干净的感觉 利用充足的自然光线和良好的照明设计,增强空间的通透感和亮度 强调家具和装饰的简洁性,追求少即是多的原则,选择简约而
铭品DESIGN 2024-04-10 15:3925142 5
-
邻居秀家丨学区虽好房子太老,45㎡老破小变身状元房
放弃郊区联排别墅,住进市区老破小,到底是什么样的魔力让人做出这样的让步? 很显然,是学区房的魅力。 就在去年夏天,森森购入了这套房龄30年、近20年没有翻新过、面积仅有45㎡的老破小,别小看这个房龄比年龄都大的学区房,毕竟是层层筛选后留下的获胜者,靠近浙一,隶属青蓝小学学区,哪怕是二手房房价跌成狗的现在,均价也保持在46000元/㎡左右。 这哪是老破小,这分明是常青树。 但不管区位条件多优越,摆在
好爱装 2023-07-07 10:1040697 25
-
90平装成120平效果!
建筑面积 / 90㎡设计风格 / 现代简约项目地址 / 坤塘悦府合作类型 / 全包——18w 设计背景 业主是位喜欢运动的阳光型男孩,其父母也是很通情达理的人,与业主及家人就像朋友一样 设计亮点 黑白搭配格调石材元素,勾勒出兼顾设计美学与功能主义的现代简约美居,无主灯设计+阳台客厅合并,空间感直接被拉起,暖灯搭配轨道射灯,温暖氛围充盈满屋 百位在职获奖设计师一对一定制化免费设计 木饰面与岩板的搭
铭品DESIGN 2023-06-26 10:547317 4
-
138方现代轻奢风金科博翠碧蓝湾
刚来杭州的时候,买的是靠近市中心的老婆小,才40平左右,房子没有客厅,只有一个厨房和餐厅,还有一间稍大的卧室和一个小房间,起初女儿还小,父母过来带孩子,加上我们小两口挤挤也住得下,现在女儿也到了学龄阶段,想想还是置换房子,所以把老破小卖了换了这个大户型。之前住老房子的时候,我们是直接拎包入住,没有装修,都是前房东留下的,现在买新房又是精装房当道,还是没法自己装修了,况且我和老婆都是上班族,也没时间
金牌回家的美好 2022-07-23 16:172440 11
-
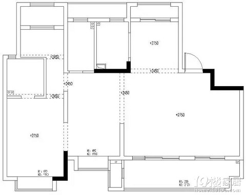
【2022日立中央空调杯】水泥上墙,隐形门设计,处处都是心机
先说下房子情况,小区是勾庄佳苑,面积160,现代风,有儿有女,三房加一个衣帽间兼书房。第二是设计施工情况:对比四家,最后确定的是都都装饰设计师杨柯谊,施工时间是2021年年后施工,装修模式是半包,费用在14万左右。原始户型空间面积是非常大的,而且是无玄关的。 方案设计后是把客厅一分为二,做了一个卧室,加了一个玄关,也按照我的设计需求做了一个书房的设计。 玄关采用了复合型柜体设计,多格储物柜,鞋柜与
51414269 2022-05-31 10:39497182 25
-
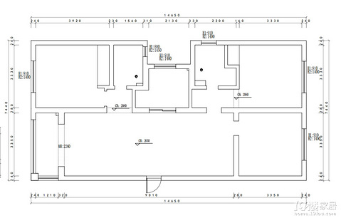
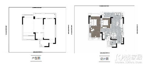
【2022日立中央空调杯】102㎡四口之家装四房,多出儿童活动区!
我们是一个四口之家,我们俩夫妻加上一儿一女,这套房子属于我们家的改善型住房,原本的户型就是四房两厅,我们对于房间的功能需求就是四个房间中有三个要保留,主卧、男孩房以及女孩房,还有一个就专门留给我老公作为书房使用。 定下最初的设想后,我们找了装修公司,但是最初的这家体验非常不好,辗转之后,我们找到了良工。在设计方面,我们主要就是两个要求,一个是轻奢设计感以及儿童房的设计。李老师给到我们的方案我们都非
17761006 2022-05-18 15:0016410 22
标签简介
你家装修花了多少钱?装成了什么样子?快来晒晒吧!



