-
千金不换我的家,这个窝我爱了!
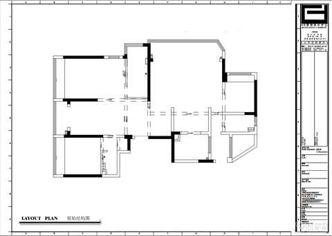
(随手拍的小家) 大约是出于幼师的职业特性,我们依旧保留了半分童真,平淡的日常不曾磨灭我们对生活的热情热情,反而让我们更珍惜生活中的小浪漫和可爱之处 (绝佳的拍摄角度) 通过奶油色调和复古元素的运用,在空间中营造出浪漫而温馨的氛围,实木家具和饰品的选择上,注重趣味和层次感,使家居充满了个性,中古与现代的元素碰撞,创造了一种独特而迷人的家居氛围 原始结构图 地址:北景芳洲苑 设计施工 :翡曼软装
51835537 2023-12-29 18:3918896 12
-
【2023日立中央空调杯】百万粉丝旅游博主的家,134㎡ 轻法式顶跃
《梦境——心居》愿我们出走半生,归来有枝可依,有爱可守。 基础信息小区:杭州左邻右舍户型:LOFT面积:134㎡风格:轻法式混搭设计:麦丰-张悦施工:麦丰装饰 改造策略 /一层户型图VS效果图 /二层户型图VS效果图 户型改造一层设置斜插式鞋柜,玄关与吧台结合,节约空间,利用吧台玄关做区域分割,打造玄关区域和餐厨之间的过度。调整楼梯方向,打造楼梯间收纳空间。二层改变露台房间的入门方式,将原本狭长
51731512 2023-06-09 16:1223150 26
-
【2023日立中央空调杯】100方法式奶油风,精致浪漫的优雅生活
因为巴黎,是一席流动的盛宴 海明威曾说过:“假如你有幸年轻时在巴黎生活过,那么你此后一生不论去到哪里,她都与你同在,因为巴黎,是一席流动的盛宴。” 设计方案 风格 - 法式地址 - 前滩名邸面积 - 100方户型 - 3室2厅1厨1卫装修公司-九鼎装饰设计师 - 马娜娜 设计师说 装修的房子位于前滩名邸,是朋友介绍的九鼎,朋友家之前就是九鼎装修的。我们对房子的格局不太满意,每个空间都不是宽敞。设计
34012814 2023-04-11 15:1157684 26
-
创造家丨拒绝“过度装修”,95后小夫妻把婚房装成电影院
本作品由中博装饰设计施工 19楼2022年创造家获奖单位 婚房这个名词,在很长的一段时间内,代表的都不仅仅是一种装修需求,而是浓缩了一整个人生阶段。 从结婚到生子,再到育儿的阶段跨度,让“实用”、“未来规划”、“轻娱乐重功能”的标签,被贴在个人需求之前。“孩子将来要上学”“留个老人房,你们上班我照顾小孩”“二胎和置换不知道谁先来,多留房间准没错”...... 当未来需求被摆在当下现实之前,现居住者
好爱装 2023-02-09 10:1840768 26
-
【2023日立中央空调杯】巧用分离法,狭小主卧秒改出精致梳妆台
房子是和宁府125方,我们是三口之家的住房需求,长辈寒暑假会来住一段时间,需要保证三个卧室以及一个多功能书房,风格这块希望是黑白灰棕色为主的现代风格,彩色局部点缀即可,设计师是都都装饰吴必杰,朋友介绍的,也对比过其他差不多规模的公司,他这里设计以及价格,性价比都高出看的其他两家。我们这个户型是四叶草户型,改动的其实不多,主要设计是在主卧方面,第一就是主卧没有梳妆台的空间,第二卫生间朝着床,很尴尬。
51627436 2023-01-03 14:5630492 26
-
【2022日立中央空调杯】杭州土著三代同堂,176㎡四室收纳NO.1
@装修美少女关于我:我们家主要就是我们夫妻俩,儿子女儿和孩子的奶奶五个人居住,我们家祖祖辈辈生活在杭州,对杭州也是有特殊的情感在里面的,现在装修的这套房子主要就是希望能够满足我们祖孙三代人的居住要求,面积比较大 但是我们也看了原来的格局好像不是很好规划的样子,所以我们找了专业的装修公司一家一家对比,后来因为设计师的设计非常细心打动了我,与恒彩结缘。 地址 | 塘湾名苑面积 |176㎡风格 | 现
46812360 2022-11-30 11:1540147 26
-
poliform性价比超高的布艺床:
poliform性价比超高的布艺床:poliform的jacqueline布艺床可以说是性价比超高的布艺床了,要设计有设计要简单又简单,而且价格也很实惠;这款床的设计在于它的车线技术,要德国进口昂贵的针车才能车出这种花型;在简单无过多设计的靠背上,刺上两条Z字型的对称线条,画龙点睛,整个床都鲜活起来了。
51473476 2022-10-28 19:462090 2
-
钱江二苑140方现代简约-入住
前面开贴记录了装修过程,现在装修结束,软装也进场了,家里打扫后效果很不错。王老师也约了摄影师来进行了拍摄 https://home.19lou.com/forum-72-thread-38011655102801815-1-1.html房子:钱江二苑面积:140方风格:现代简约公司:城建装饰设计师:王克装修模式:全包 我们的房子拿到手自己就想着大概的规划,但实际却又感觉空间狭小,三口之家,主卧的位
46888353 2022-10-08 12:31440129 26
-
【2022日立中央空调杯】设计师解决了我家实用和浪漫不兼容的问题
真正优秀的设计师让我知道,实用与浪漫,都是可以兼得的!! 一晃5年过去了,在杭州漂了5年,终于在去年买了房,沉浸在买房喜悦的我们当即决定,装修和备婚同时进行!很……累,如果再选可能不会这么赶了哈哈,回到正题,因为平时真的很忙很忙,所以我们希望在选择装修公司上做到“快、准、狠”,前期一直冲浪看网友评价,初期筛选出了5家,我们又针对性的看了网上排名靠前的几个装修公司,他们的企业文化、给客户的承诺等等,
50447911 2022-08-21 17:5917737 26
-
【2022日立中央空调杯】二胎迁新居,搬进160㎡大平层的美好生活
在杭城打拼了不少年,一家三口终于从小三房搬进了大平层,新家交付完准备装修,我爱人恰好怀了二胎,可谓双喜临门。 因为是改善型住房,比较看重设计的新颖与实用性,希望新家能承载一家四口未来的小欢喜,经过再三考量,还是选择了恒彩的杨滟妮老师来操刀。@装修美少女 大平层保持随心所欲的空间感,整屋的现代简约风既能落落大方的爽利,也要具备细节处的浪漫 我们家对收纳空间有极大需求,再加上是二胎之家,同时也要有足
46795344 2022-08-07 12:0110244 26
-
【2022日立中央空调杯】我家老爷子的养老居所-欧式
说在前面 小区:金昌苑面积:90装修模式:半包装修公司:城建设计师:苏苗成 金昌苑是我们回迁房分房交付,分到了160平和90平的各一套,90平作为老爷子养老居住,风格都是要做欧式,装修上很明确都是做半包,找到城建源于经理是我们的朋友,就让她安排了手底下的设计师,今天先说说90平这套。 因老爷子自己居住,只需要一间卧室、额外需要一间书房,设计上1、客餐厅位置与次卧互换,设备阳台包进隔墙做小书房;2、
46888323 2022-07-25 09:4720503 26
-
【2022日立中央空调杯】128㎡95后婚房,独爱灰度碰撞莫兰迪
95后的新房应该是什么样子?我设想了很多,没想到竟然都被设计师实现了!因为自己本身职业也是做摄影跟拍的,所以对装修风格有自己的看法,原本想要高级灰色调,后来因为风水大师说婚房颜色不能太沉重,所以整体使用明亮和干净清爽的颜色较多。我养了一只超级可爱的狗狗, 项目地址:湖山一品设计师:胡斯麦房屋面积;128㎡施工单位:楚邦上易装饰 我家建筑面积128平,套内面积108平左右,是一个四房两卫双阳台的结构
50193788 2022-07-12 14:4232411 26
-
【2022日立中央空调杯】美式轻奢的三世同堂该是岁月静好的模样!
@装修美少女 从事留学工作了久了之后,对于美式心中一直有个蓝图,而看中美式绝大部分原因是因为当下快节奏的生活中美式能让人放慢脚步,去细细品味生活的美。 因此在挑选装修公司时格外注重品质的提升,而看中恒彩的原因绝大部分也正因为如此: ①恒彩自有的化工班让我感觉非常系统且专业;②主很材符合我们的心意。 加之与设计沟通顺畅,杨老师仔细了解我们家的人口结构,根据人口所规划的空间合理且实用。整个施工前期都是
46882207 2022-05-13 17:4323509 26
-
【2022日立中央空调杯】280㎡东方雅韵与现代时尚的激情碰撞
地址 | 香港兴业耦园 面积 | 280㎡户型 | 5室3厅1厨3卫 设计 | 黄丽风格 | 新中式+现代轻奢装修公司:九鼎装饰常住 | 夫妻与儿女,双方父母偶来居住 我们家装修是混搭,是传统与现代融合的风格。因为要满足不同代人的需求,一楼父母居住,采用新中式风格,以当代手法解读传统,美以外形,秀以内涵,内外兼修,熏染出灵秀意境。二楼是儿子和女儿居住,采用现代轻奢风格,以奢华的材质与精致的软
34312015 2022-03-24 10:4011666 26
-
【2022日立中央空调杯】40平一居室,小空间如何显大还超能收纳?
建筑面积:57平米 户型:一居室 服务模式:半包 半包造价:10万(含所有家具) 项目地址:四季广场 氛围:现代简约 设计:女主 施工:江水平装饰 单室装修,想要在使用面积只有40多的长形一居室内,实现家庭所有功能,对于第一次装修的我们来说,简直太有挑战性了。全部设计由学美术的我亲自操刀。 喜欢通透明亮的环境,因此全屋采用了开放式布局,通透的格局让整个房子看起来比实际面积大了很多。 因为是一居室,
50807258 2022-02-15 06:0913350 26
-
【2022日立中央空调杯】89㎡高级轻奢风,一个打工人的理想家
奋斗这些年我们终于买房了! 之前刚来到杭州那时的房价还没有现在这么高,但是也没想过要买房,错失了一个好时机。经过在杭州工作的这段时间,我们也习惯了呆在杭州,比起一直在租房子,我们准备把这几年存下来的钱这几买一个房子,看了很多户型最后还是选了一个89㎡的刚需户型。 准备装修的时候考虑到我们家只有一个女儿,基本上就是三个人住房间也不用很多,所以恒彩的设计师给推荐做了一个衣帽间,一个家中有一个衣
50177902 2022-02-10 16:5116051 26
-
89㎡暗黑轻奢系一人居,到底有多酷~
本期案例的业主Yuki是一名服装行业从业者,拥有十几年的奢侈品公司工作经历,一直追求的是一种个性、时尚、精致的生活方式。Yuki为这个新家取名“SPACE-Y”,代表这是他的独立生活空间,就想他对于家的定义一样,“我想要的是属于我自己的空间享受和生活的理念表达”。最终,这个家正如Yuki所期待的那样,从视觉、听觉、嗅觉和味觉,全方位呈现出了一个相对自我的空间,一个可以获得长效舒适的居所。 (修改好
31273298 2022-01-23 17:065686 12
-
最好的风格是设计成自己想要的风格
我家终于竣工了,可以和大家分享我的新家了,重新上19楼发帖是因为看到设计师发我们家,还是有很多感慨,所以特来跟大家聊一下我们家。其实我是一个从事IT行业的单身汪,本着严谨的态度,今天做个总结吧。 我家是上河宸章,装修大概花了有二十几万了,在买房和装修阶段我就看了很多关于小户型的装修,最后买房的时候选择的是比较方正的,空间大,因为目前只有一个人住,所以风格更多的考虑的是我喜欢的风格。 我在确认都都这
50797884 2021-10-19 17:0014196 26
-
手办迷、潮鞋控,我们家的标签还有很多
我喜欢看书、收藏手办跟鞋子,屋内有很多储物柜,方便收纳展示。简单介绍项目地址:碧桂园越溪府施工设计:铭品装饰风格:现代项目面积:150㎡客厅 黑白组成的空间,色调在明暗之间,呈现鲜明的层次感,整体是现代冷淡风格。 木地板的自然纹理由地面延伸至电视背景墙,铺垫了整个家具的温馨格调,也让空间得到了进一步延伸。 轨道灯+中间暗装筒灯的方式,更适合全屋无吊顶,有点事可以自由移动,跳绳角度,自由增减灯具数量
51049778 2021-09-24 15:2417552 26
-
我的复古轻法式小屋,能独居到天荒地老~
说在前面 当时我在香港读研,萌生在杭州买房的想法后,和妈妈立马就飞来了杭州。看房子的第二天就定了这里,也算是速度很快了。这也算是一种缘分吧。对我而言,家应该是一个温馨,舒适,耐看,能让人放松下来的地方,在地毯上沙发上坐着,和朋友们喝喝酒聊聊天,找个舒服的姿势舒服的位置。自己打算独居,个人比较喜欢法式的优雅和随意,于是,我找到了之和家居,遇到了有眼光有品位的设计师,而且沟通很愉快;最令我满意的
49947184 2021-07-22 13:5317173 26
标签简介
你家装修花了多少钱?装成了什么样子?快来晒晒吧!



