-
【2022日立中央空调杯】人至中年,120㎡二手房作为改善型新居
@装修美少女 说在前面: 我们家是典型的三代同堂,目前是有一个儿子,父母与我们同住,既方便我们照顾他们;也可以帮我们带孩子。因此在装修之初我就将自己的想法与设计师沟通,方案迅速落地并执行,不到四个月基本上就完成装修了。 地址 | 爵士风情面积 | 120㎡风格 | 现代常住人员 | 5人装修费用 | 精装22w装修公司 | 恒彩装饰 房子装修完工有段时间了,来给大家晒晒我的新家了!!! 验收房屋时
46882187 2022-04-21 11:059514 21
-
275㎡三世同堂的舒适阳光房,被挑高客厅圈粉!
三世同堂+二胎家庭,如何设计才能最大程度满足所有家人的需求,打造一个有颜有品、舒适度满满的家呢?圣都家装设计师周斌老师给了我们一个满意的答卷! 面积 | 275㎡复式阳光房居住人口 | 父母、夫妻俩和一对小公主一起居住。户型丨5室2厅1厨3卫风格丨现代轻奢施工单位 | 圣都家装对于装修具体有三点需求:1、家中有老人和小孩,家装材料一定要环保。 2、风格上最好能满足温馨、开阔、明亮的特点。3、对舒适
51353127 2022-04-20 11:1514380 21
-
【2022日立中央空调杯】156㎡排屋装出大宅范,定义奢华与舒适!
最近新家好不容易完工,谈谈一些自己的心得体会,装修宜早不宜拖,原以为提前抽出3个月为新家装修做准备足矣,结果发现准备工作仍旧做得不够,自己心大导致辅材没到位,最终工期拖延;验房时发现,即使选房再精挑细选,还是难免有不称心的地方: 1. 原本我家厨房是封闭式的,光线不佳,空间相对局促,也无法满足对中西双厨的需求;2. 希望拥有一个独立衣帽间,并增加其他储物空间;3. 主卧的吊顶在原建筑结构里呈现一个
32802251 2022-02-07 16:1817158 21
-
仙人掌到位
这几盆小仙人掌种了我一个小时,看在你们命硬我忍了
51139856 2021-12-03 22:322251 8
-
85平日式理想,空了就窝家里,哪儿也不想去
【小区】: 新丽名苑【面积】:85㎡【风格】:日式【施工】:杭州江水平装饰 在杭州十三年了,租房多年也搬了很多次家。终于有属于自己真正意义的第一个家。拿到房以后就开始着手准备装修,自觉的家就应该按照自己的想法来装修,怎么舒服怎么来,设计要有自己的气质。 虽然当时租房离新家很远,我还是亲自参加装修的每一个环节,幸好结果是欣慰的,每一个来家里的亲人朋友都是点头认可。作为颜控的我,颜值肯定是摆第一位的,
50806638 2021-11-28 19:217017 21
-
刚需房,小三居的温馨家搭配
没什么大抱负,就想和爱的人,有个美美的小家,就这样一辈子...这或许是,坚持在大城市的大多数年轻人为之奋斗的目标。 地址:德信东宸面积:90风格:现代轻奢模式:全包公司:城建价格:15w 需求:作为常见的刚需房,空间的局限是最头疼的问题。在原始户型大格局基本不动的情况下,就稍微把餐厨之间布置好,有舒适的生活动线;家里需要有足够的收纳空间。我家的户型很通透,所以找装修公司的时候就希望他们能够把我们家
50555966 2021-11-17 10:4410658 21
-
做懂你的设计,海归青年的理想生活 150㎡精装房大平层改造
无垠 01THE CUSTOMER DEMANDS业主需求 业主比较喜欢现代台式的感觉,因为是自己一个人居住的情况多,而且在英国留学回来,整体的定位是都市精英品质生活的感觉。 02ANALYSIS DIAGRAM分析图 ▲原始平面图 //户型优劣势原户型除了客餐厅和主卧空间,其他三个房间空间偏小。 ▲平面布置图 //户型改造由于本案是精装房,所以主要改造方向就是把原始精装房的一些墙面造型和地面包括
麦丰装饰2007 2021-07-20 10:297025 21
-
196平的江景房,我慕了
周六一大早就去了上海老姐家,地点外滩海琪园,小区只有7幢,江景房,属于二手全改,共4个房间2个卫生间,客厅超级大,所有的东西都隐藏在柜子里,很清爽。进门是一条过道,左边都是隐藏木门,是暗扣式的,厨房的柜子也很多都摆满了很多烹饪厨具,家具都是进口的,姐夫因为做出口贸易的,所以也比较方便,客厅落地窗的窗帘还未装全,长长的白色沙发拍照绝了。客卧在客厅的右边过道,正对着的是儿童房和阳台没有细拍,右边一个是
Leo0729 2021-07-19 09:352827 14
-
121平北欧,颜值即是正义丨收纳也是光
【小区】: 滨江德信东方星城 【户型】: 三 室2厅 【面积】: 121平米 【风格】: 北欧简约 【施工】:江水平装饰 平面布置图 客厅与餐厅连成一气,落地移门将客餐厅空间与室外的光和景紧密联结,增加了室内空间的自然采光。 电视背景没有做过多的装饰,白色墙面悬挂黑色激光电视屏,黑白配诠释时尚质感。 简洁的造型、简单的色彩,营造简约舒适的视觉观感。 开放式的客餐厅彼此独立又相互依存,毫无阻隔的设计
50811801 2021-06-30 21:258653 21
-
188㎡简约大平层,温暖的动漫之家~~
这是一个喜欢搜集各种各样有趣物件,喜欢简约温暖空间的业主,对收纳要求很高,有一个可爱的男宝,超喜欢拼搭乐高。这是一个同样喜爱各种玩具,和小孩子没有代沟的妈妈,她对孩子的私人空间要求极高,希望在这个家能让孩子在游玩,学习,休息和生活习惯上都有充分的独立自主性。 客厅不仅是接待客人的厅室,而更是家人每日的起居室,起居空间的放大是为了让家人更多地在这里交流、互动。 动漫人物头部锐利干净的线条,高饱和对
亚加装饰始于1994 2021-04-19 17:058797 21
-
8个超炫收纳技巧,让70㎡的家,秒变3倍收纳力
新房刚装修好的时候,空空荡荡,再买入沙发等软装,变得温馨舒适。生活还得继续,用品还在增多。随着生活了一两年,买的东西越来越多,从刚刚开始根本没考虑过的齐人高抱枕,到后来需要的各种电热毯、棉被,这时才发现家里越来越拥挤,越来越堵塞,像是压得人喘不过气。今天小铭就为大家分享一下终极收纳攻略,还在装修的小伙伴们可要收藏起来哦~收纳一:玄关玄关作为入户的第一印象,往往都是想着装饰得怎么好看,草草准备个鞋柜
铭品DESIGN 2021-02-26 14:019502 21
-
【2021秀家大赛】黑金撞色,轻奢气度,89㎡质感住宅又酷又精致
本案是一套89㎡的中间套,三室两厅,原始布局中规中矩,新意欠缺。业主是一家三口,从沟通中了解到,“个性、品质、审美”是夫妻二人的生活追求。最终,我们一致选择了黑金色系的都市现代风格,个性前卫又极具品质。 案例信息▼项目地址|西湖国际城 设计公司|良工装饰临安分公司项目面积|89㎡项目风格|现代风格设计师|夏濛装修总费用|43万 (其中软装10万) 玄关 入户通往客餐厅的是一条狭长过道,设计师借用
32798707 2021-01-22 11:0026687 21
-
爆改52㎡老旧xq房,看怎么合理运用
我们常常说,一个人的家是自己品味和个性的缩影:精致的摆件、舒服的搭毯、美丽的鲜花、个性的壁挂、常青的绿植......所有的一切都营造出来舒适而美好的氛围。这套房子是业主一家三口住,方便孩子上学,十分感谢屋主给予的充分信任。 虽然原始户型看似都合理,但是细小的功能空间还是不能满足日常的需求。所以,在布局规划的时候我们就开始做墙体的改动去实现设计了。在构建的整个过程里,就像完成一件艺术品,从一开始的塑
亚加装饰始于1994 2020-12-28 15:018644 21
-
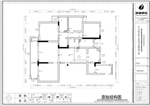
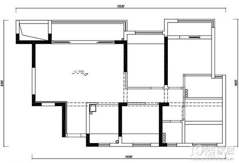
1/3书写区,2/3洗衣生活阳台,98㎡极简慢活家
本案是位于莆田涵江塘北新城的一高层住宅公寓,套内面积不足100平。要在有限的空间内,满足三居室功能布局,营造一个温馨、舒适且能满足大小收纳的空间。 家居的设计令人着迷的地方就在于它对居住者的故事和情感的无限还原。 项目信息面积:98m?风格:现代简约户型:三居室预算:约30万 户型图 原始结构图 方案设计图 玄 关 推开入户门,可以看到整个客餐厅。边上的功能柜,很好的解决了收纳功能,为餐桌和厨房台
50268925 2020-11-16 14:0610390 14
-
杭州老房翻新记|55㎡小户型中岛厨房+阳光书房,美得不像话!
——套内面积:55㎡房型:2房1厅1厨1卫风格:北欧风—— 今天给大家介绍的是套55㎡的二手房,小吴夫妻在今年九月份成了这套房子的新主人。对于热爱生活的小吴夫妻来说,简陋的陈设、封闭的小厨房、有限的收纳空间,绝对无法满足目前的生活追求,于是果断找到我们至美焕新,进行了一场历时45天的“彻头彻尾”的改造,最终效果如何?一起来看看吧! △老房旧貌△户型缺陷
50041245 2020-11-15 12:447668 21
-
有娃家庭还敢拆掉储物间,这个105㎡收纳堪比200㎡!
对有孩子的家庭来说,收纳功能也是刚需。 清和一舍户型:两室使用面积:105㎡花费:28万元 原始户型基本每个空间都有不太合理的地方: 没有设计玄关区域,进门就见客厅,餐厅的位置安排也比较模糊; 主卧室内窗所在的墙面是斜面,作为睡眠空间,很容易让人产生不适感;厨房的水槽位置和灶台距离较近,动线不流畅;卫生间的面积不够,外侧的储物间反而显得很鸡肋。 /原始户型图/ 设计师和屋主商量了3套方案,最终决
50268915 2020-10-13 15:5111902 21
-
做个有文艺腔调的人 来晒晒家里的艺术家居吧!
秋季是一个多愁善感的季节 是一个想静下心来写字、聊天、抒发的时节 特别容易发现身边的美 秋季常常伴着一丝淡淡的文艺气息 所以,怎能浪费这个天赐的良机 一起来晒晒家里那些你精心装扮的艺术小角落 或者晒晒那些你花心思淘来的艺术家居吧~ 艺术家居不是非得很精贵,你可以在路边淘,可以在小店铺里买,或者自己制作。 可以是一张画,一套陶艺品,一件摆饰,一把椅子等等 希望你在回帖分享照片的同时能再顺便写写你
高帅富爱家居 2013-09-27 13:5914903 21
-
精装房小次卧有救了,这样装修功能翻倍~
精装房交房后,很多业主会发愁那间不足9㎡的小次卧该怎么布置。纯做书房有点浪费,住人吧又有点拥挤。别担心,今天小翡就为大家带来精装房小次卧的改造攻略,实现小次卧的逆袭! 精装房小次卧放标准床往往变得很拥挤,若选了靠背、边缘很厚的款式,装完就只能在房间横着走了。相对而言,以下这些设计方式对小次卧更加友好: ①量身定制的榻榻米小空间和榻榻米配一脸,根据户型量身定制的榻榻米,严丝合缝,不浪费一寸空间。放
铭品DESIGN 2025-08-24 17:0854326 3
-
178㎡意式轻奢宅,奢石+光影的高级玩法
本案为意式风格的一套精装房改造项目,业主需求更具个性化的装饰,以及稳重大气的居住氛围。居室主体以米灰中性色与大面积的褐色木质纹理建构,融入高级感奢石,与木材交织出更为丰富的层次,现代潮流与实用主义相融合,造就时尚、雅致、利落的意式空间。 户型方案LAYOUT DESIGN 实景呈现CASE APPRECIATION No.1玄关 高雅的背景墙设计,让玄关不再只是脱放鞋物衣物的缓冲区,而是悉心布画的
浙江南鸿装饰公司 2025-04-08 11:316586 0
-
归家的仪式感是目光所及的一切
归家的仪式感可以是一级级缓缓的台阶,可以是门前的石榴树,可以是窗前随意插放的野花,可以是洒满阳光的门厅,可以是目光所及的一切[爱心][爱心][玫瑰]
安澜之葵 2024-09-14 16:204928 4
标签简介
你家装修花了多少钱?装成了什么样子?快来晒晒吧!



