-
【2023日立中央空调杯】2代同住242方简约大平层,270°落地观景
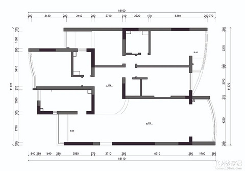
空间开阔心情好,别墅哪有平层好。今天的案例是一套242方的大平层,风格是简约风,是非常适合大平层这种户型的装修风格之一。两代人居住,而且还要考虑到儿子结婚后的居住情况,所以在具体风格上还要做到老少皆宜,不过简约风格本身就比较中性,更多是在细节上的调整。房屋信息面积:242方户型:大平层(四室两厅一厨四卫)风格:现代简约装修公司:南鸿装饰费用:硬装48W、软装25W工期:7个月户型图 (原始户型图)
50869165 2023-04-20 09:5937076 20
-
【2022日立中央空调杯】121㎡墨绿色的家,少见的阶梯式玄关柜
几年前我跟我爱人两个人去欧洲旅游,觉得他们的建筑风格很符合我们的审美意向,纯正的北欧风,色块组合是空间的一大亮点。采用大面积的色块和凸显纹理的元素,展现明快而简洁的视觉效果,看似简单却十分宜居,素净又不张扬,可以让空间多出几分精致的感觉,这也是我们一致认为的家的感觉。现在家里有小朋友了也是希望能给她一个温暖安全且美好的童年,在看装修公司的时候也是对比了很多家,最后选了无论是从材料安全品质还是设计的
甜美的小树bdwniz 2022-11-17 13:5320672 20
-
【2022日立中央空调杯】玻璃砖引采光,150㎡现代家处处敞亮
我们家是个相对中规中矩的户型,本身的采光也不错,设计师说是什么心间户型,不过整体的一个动线不是非常合理,功能也满足不了我们家整体的需求。良工吕老师重新梳理空间,制定必然动线,拆除墙体,打开空间,既能让更多的光线进入,也能建立起动静分区的新的节奏感,增加新的实用功能区。装修完工后的光影运用上也做到了极致,玻璃砖的通透高冷感不仅为全屋风格加分不少,也让光影变得更加多元丰富。 项目名称|《心空间》项目地
17803740 2022-11-11 16:1525467 20
-
98㎡简约风三居室,看得温馨,住得舒服
我们家是98m?的三居室,我是做教育工作的,平时闲暇的时光,喜欢看书烹饪美食等。所以与现在年轻人比,我还是更注重家庭的温暖的氛围,是希望回家是一个比较治愈的感觉,让身心更放松。设计老师胡萍萍在硬装上也是进行了一个结构的调整,然后开放式厨房、干湿分离的次卫、飘窗结合梳妆台,都通过设计让整个空间实用性更高了。软装搭配的那种温馨感,就是我向往中的家。 项目地址| 宝龙龙沁城设计公司|良工家装项目面积|
32798812 2022-11-10 16:2012747 20
-
“书房比较大想换个大桌子,哪款合适?”
“想在卧室用,可以充当化妆和置物桌”“办公室办公,选哪个型号?” 这些问题我在选购的时候也非常非常的纠结,但长期的久坐对自己的腰椎和颈椎的压力真的非常大,为了更高效的工作,更健康的工作,还是下定决心。下单了乐歌。 根据居家办公的需求,尺寸方面选择的是1.6m*0.8m,放在窗边刚刚好,把显示器,笔记本,游戏机以及一些装饰摆件都摆好,空间也非常够,这款乐歌ie6加固的“双衡梁”,加厚桌角铁板,都让它
51310525 2022-11-03 14:023233 7
-
153㎡现代轻奢,科技的馈赠,带来高品质轻奢生活享受
◆ 德国诗人荷尔格林有一首诗《人,诗意地栖居》,里面写道:然而诗意地/人栖居在大地上/那满缀星辰的夜影 /要比称为神明影像的人 /更为明澈洁纯。 ◆ 新城吾悦的室内设计,我们以人的尺度规划空间,梳理空间的水平与垂直动线,以原木承袭诗意和温润,以金属展现时尚与奢华,以现代化科技技术呈现生活的质感,通过富有艺术感的美陈和家居,营造诗意的栖居空间。 ◆ 本案业主黄先生是一名律师,见面之初他给我的第一印象
铭品DESIGN 2022-08-29 14:587687 7
-
【2022日立中央空调杯】出租收回后重装成小家,充满期待ing
这套房子之前用于出租,收回后打算我们夫妻自住,然后目前住的房子考虑局部装修后出租出去。原始测量的户型可以看出我们按合租的方式租给了5个租客,户型上整个杂乱,需要设计师根据我们两夫妻的居住需求重新构建、规划、布局。 找到一个优秀、认真尽责、经验足的设计师是非常困难的,我们是先询问身边的同事、朋友装修找的什么公司或者设计师推荐。有找清工的,设计师就是自己,这样其实不行,关键每个工种都得去找,我们时间不
46888337 2022-06-24 09:47413326 20
-
【2022日立中央空调杯】89㎡现代风,决定了,就在这里与你白首
我家是一套三室一厅的刚需房,面积89㎡,2020年对我们而言,是意义非凡的一年,这一年,准备结婚、装修婚房、工作等,对家有具象的期待。在每一处空间都要有收纳,空间感要大,尽可能增加房间的收纳。前期设计阶段我们接触了很多个设计师,将对家的需求和两人的喜好罗列了几十条,统统发给设计师,经过多方对比,最终看中了细心又耐心的万设计师。本案设计以简洁大气的现代简约为风格基调,每一处家的细节都融有我们两个人
48962556 2022-06-15 15:40422331 20
-
【2022日立中央空调杯】30万焕新200方精装房,尽显奢阔气场
房子的一些基本信息 项目地址| 麓宸府 设计公司|良工家装项目风格| 现代简约户型| 四室两厅设计师| 蒋科萍装修总费用|30万 我们家是精装修的,交付完成的时候就已经开始考虑要重新进行一次改造,因为以前家里有别的房子在良工装修过,是比较满意的,所以这次也是选择在良工装修,这次他们也很好的满足了我的需求。硬装部分就只进行了局部的优化,软装合理的布置,设计师巧妙的运用色彩的搭配,让这个跃层+大横厅充
32809322 2022-05-27 14:4913331 20
-
才发现,原来生活也是可以简洁而不失舒适
繁忙的工作之余,温馨的家始终让人牵挂无论多大的小窝,始终缺不了时尚感不喜欢太沉重的感觉,还是觉得简洁典雅最适宜每一层的合理利用,才发觉原来生活也可如此简单舒适但从不会忽略掉,健康的品质
51232737 2022-05-25 09:435872 13
-
【2022日立中央空调杯】125㎡适合三代人居住的现代风装修,
打破传统的装修习惯,根据我们居住需求,最大程度的优化空间。本案将原来的储藏间拆除,把空间释放出来给餐厅,餐桌居中放置,形成环绕动线,另外餐厅跟客厅的中轴线尽量统一,使整个空间更加井然有序。主卧室打破了传统的摆放方式,床头放在进门口一侧,床尾设计了综合柜,满足了衣柜电视柜办公桌的功能,进主卧门右手边设计了拱形门洞,巧妙的把休息区和门厅区分开,也增加了主卧的私密性。 放一下户型图 原始结构图 项目地址
51259396 2022-04-13 16:1413527 20
-
春天庭院绿化怎么打理?
春季养护工作抓实抓细,一是继续浇灌返青水,防止春旱,降低地温,保护苗木发芽,防止倒春寒。二是修剪草坪、清理枯枝落叶,清除杂草,防止病虫、病原物在树木周边隐藏繁殖。
木東造园321 2022-04-07 09:2412245 7
-
【2022日立中央空调杯】128㎡一家四口轻奢奶咖三居,灵活布局
房子基本信息:项目地址| 水景城设计施工|良工家装项目面积| 120㎡项目风格| 现代轻奢设计师| 陈其翔 新家的落地效果,不仅设计师看了满意,身为业主的我看完以后更满意。为啥会这么说呢,接下来聊聊具体原因。起初也找过其他公司聊方案,但是给出的设计方案,始终没法满足我们一家子的居住需求,后来通过熟人介绍认识了良工的陈其翔老师,抱着试一试的心态,量完房后跟陈老师见了几次面,交谈甚欢,一家子也很喜欢这
17766884 2022-03-03 16:3116077 20
-
【2022日立中央空调杯】二手房改造主题赛,分享改造成果送红包
2022日立中央空调杯秀家大赛——二手房改造主题赛 二手房改造一直是室内装修的亮点,面对二手房改造,不仅要打破新家原始布局,还要保护好原始房屋质量特别是遇到老破小改造,更是考验装修功力。 先来看看,2021年秀家大赛季军@YOYO时为了孩子读书,就买下了一套二手房,奇异的三角户型,让她废了不少心思,经过“推箱子”游戏启发,她推到外墙重新砌墙,不仅扩大了空间,还把户型变得方正起来,是一套值得大家学习
40037140 2022-03-02 14:597031 20
-
邻居秀家 | 三套房子都有它!这届小姐姐80%都是衣帽间控
不知道从什么时候开始,衣帽间逐渐变成了装修的一种标配,不管是五六十平的老破小,还是三代同堂的大平层,小伙伴们(主要是小姐姐们)总能找到办法,在家里整出一个像模像样的衣帽间。 随着时代的发展,人们对居住的要求,已经从[有房住],变成了[住得从容],而衣帽间,从某种程度上来说,就是“空间自由”的一个标志。 从结婚到现在,朱朱一共买过三套房,第一套婚房,第二套是孩子读书用的学区房,第三套就是现在住的这套
好爱装 2022-03-02 11:0812597 20
-
煮一壶温暖,品一杯幸福?
49767969 2022-01-20 09:048736 13
-
精装房改造实现完美逆袭,高颜值+强收纳
这是一篇分享新家的帖子,废话就不多说了,首先就说说我们家的基本情况吧。我们家买的是精装房,一家四口居住的。原先这个精装修的房子是新中式风的,感觉略显的老气,就想改造一下变的年轻时尚一些,收纳空间也要足够的多,我们对于理想家的模样是优雅的、舒适的、艺术的,希望这个家格调与质感并存。设计师根据我们的要求和想法,进行了局部的改造,增加了现代轻奢的元素,加上软装的搭配,帮我们实现了现在这样的舒适时尚的家。
51168385 2021-12-09 15:3019288 20
-
风雅乐府110㎡极简风公寓,楼梯办鞋展,Loft也很香
本人90后设计狗一枚,今年买了一套loft的二手房,上下两层110㎡。想从0到1为大家实地呈现一下老房翻新的过程,也是对自己人生中第一套房的一种致敬吧!装修过程中的经验和教训也会和大家一起分享。3月20号就拿房啦,一直忙于工作,没来得及及时分享,最近终于有点空闲整理了一下分享给大家去的时候现场还没有清理,废话不多说,来吧,展示: 地址:风雅乐府面积:110㎡装修公司:恒彩家装装修风格:极简风格 风
46812530 2021-11-21 15:028033 20
-
东寰名邸毕业照
开心住新家
11884804 2021-10-31 16:144243 20
标签简介
你家装修花了多少钱?装成了什么样子?快来晒晒吧!



