#主体拆改#
68人参与 27143浏览
-
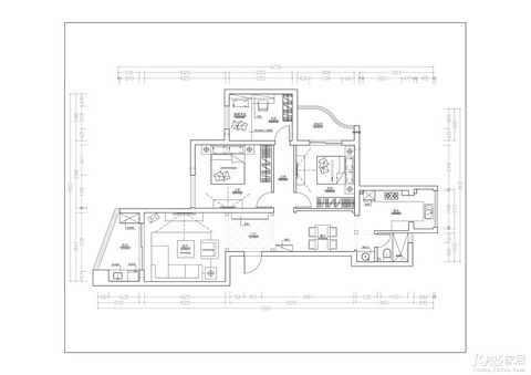
【2020日记大赛】54.4平老房改造
江水平师傅名单 拆除:周师傅水电:张晶张工瓦工:郑家荣郑工木工:郑国松郑师傅油漆:龚宜定龚师傅 各类房门、推拉门、厨卫柜门:楷奇木门吊顶:特略吊顶各类五金、地漏、面板、晾衣杆:好太太五金过门石、石英台面:铭轩石材瓷砖:鹰派瓷砖石膏线:杜如意杜经理 2015年初,距离我们第一套新房收房还有大半年的时间,完全沉浸在拥有自己房子喜悦中的我们俩早早就开始了装修的各种准备。一个很偶然的机会,媳妇从朋友那里听
48926287 2020-01-02 19:5410542 40
-
1
1
42032471 2016-03-18 10:4411649 38
-
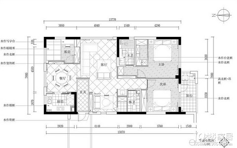
现代景苑·简美·127平方,一切从实用出发
“尊敬的杨小姐,您好!今天是【2017.8.24】,是为您新家施工的第【1】天,浙江铭品装饰项目经理12小时为您新家的质量保驾护航,今天实际施工项目为【墙体拆除工程】,现在向您发送工地施工情况,请您查收。”开工第一天 很庆幸自己最终选择了铭品装饰,今年事情比较多,装修,生宝宝都赶在一起,从八月初开始开始和王工对接装修的事情,到目前为止一切都很顺利,商量方案,签合同,跑审批,到今天终于开工了,本来选
11831985 2017-08-24 11:3618545 36
-
【2020日记大赛】五幸家园小区施工中,大家一起帮我监督!
人生第一套房装修,在此发个帖子纪念下。找装修公司也是个麻烦事,每天都要很多人打电话给我,微信加看五六个装修公司。但是听说有的装修公司很坑,毕竟装修款也10多万,害怕遇上骗子公司,心里没低。所以我选择了半包,半包水分比较浅。 我找了3家装修公司来量房,如下: 一家是圣都装饰,大品牌,公司也很大,很气派。我们去他们公司也看过,看起来做的也不错。但是听说要看运气的,遇到好的项目经理和设计师做的就
49840948 2020-05-18 13:4012672 34
-
爵士风情花园110平美式装修日记
【小区】:爵士风情花园【户型】:三室两厅一卫【面积】:111【风格】:美式【施工】:李师傅(拆除)+熊师傅(水电)+张志钢(瓦工)+小赵师傅(木工)+王立亮师傅(油漆) 这是设计师改过的图纸,现在的客厅原来是主卧室,原先三个卧室都朝南。把原先的客厅隔出一个房间(餐桌旁)。设计师说这样动静分开,我也觉得这样不会影响小孩学习,客厅朝南也非常好!在等待了六个月后终于拿到房子了,选择吉日六月二十三日立马开
48926467 2020-07-08 16:5213265 33
-
老破小终于可以动工了
一场疫情,打乱了原本的节奏。 按照原定计划,正月十五算是吉日,于是赶在年前把装修公司定了,放假前把合同签了。然而,疫情突如其来的来临了,于是,开工遥遥无期。 在定装修公司之前,我一直在关注19楼的装修板块,因为是小户型,所以也经常关注的是小户型的设计和装修,看到很多小户型都找墨缘做,心里也很倾向找他们,一直都在看他们的案例。 但是最终为什么没有定墨缘呢,因为我找了墨缘两次,他们都没人理我。后来继续
萧萧可乐 2020-03-14 23:0611224 31
-
紫金庭园+ 107 + 现代
前期准备 关于装修我们其实已经准备了很多年了。从08年开始我们陆续住过好几套房子,辗转在上海杭州和温州。因为这几套房子都是公婆之前就装修好的,所以我们住得都不是很舒服。每次都以为是定居在此了,打算装修了,又因为计划赶不上变化,又搬了家,所以装修市场其实跑了很多,就是没有付诸行动,这次总算可以付诸行动啦。不过也正因为我们住过多套房子,所以呢对于我们自己到底想要一个怎样的房子,我们心里很清楚。对于家
48902765 2019-07-27 16:508125 31
-
【2020日记大赛】89方三室两厅两卫/枫尚壹品装饰/全包
因为自己也是第一次装修,所以想找个地方记录一下,可以为以后装修做点笔记,因为还有我姐的房子需要装修,也算学习学习。谈装修的时候壹品装饰的工作人员小丽和万姐都很热情,感觉也很靠谱,所以也没有去其他装修公司多做比较,直接就定了,全包18万不含家电,工期为4个月,至12月底结束,承诺不改方案不增项,我方案应该是不会改动了,所以应该就是这个价格了。工程前天开工啦,装修押金也完成,现场就差一个敲墙审批,就可
42590387 2020-08-12 09:35105473 26
-
【智汇·家】小家装修记
寻找合适的装修公司,找过挺多,和朋友也了解了挺多,最后选择了品东。大概三年前把,也是19楼活动的时候机缘巧合留下了联系方式,后来接触下来觉得老板和老板娘很和善,做事情有交代,所以就选择了品东。 前期设计有好几稿,前后大概有1年时间在磨设计,自己想法也一时一变,主要是户型有个短板,进门对着客卫的门,但又不喜欢隔断,幸亏最后还算满意的解决了,就是牺牲了一点次卧面积,不过和通透相比我可以接受一点面积的
37073493 2020-08-17 21:3420025 22
-
【2020日记大赛】61方老房装修
19楼上找师傅报价基本上都4500起步,我淘宝上找了个家政师傅来报价一共3300包清运和拆旧砸墙,拆完无增项,垃圾都是师傅一袋一袋背下去的,就是垃圾堆家门口导致门关不上噪音无法隔绝被邻居投诉了一波不太好。
Zz_3045 2020-04-19 10:4218354 27
-
【89方两人一猫】30万装出50万的效果
写在前面:需要推荐装修公司或某些定制商家的,包括想看其他房间细节图的可以私聊我,不在公开帖子打广告以及放太多私密空间~ 加上疫情,前后整整装了一年,设计出身的强迫症细节控不听劝患者,逼死了几乎所有参与过我家装修的商家和师傅们现在终于入住了,实在有太多心得要分享。先给大家看波自己做的效果图和实景对比图吧~(非专业人士不要在意我做的效果图质量) 第一次装修,选择了半包,选择装修公司的时候还是很忐忑的,
45268182 2020-06-28 15:3210566 15
-
【2020日记大赛】64平美式乡村小屋装修记
【户主】:海狸先生、渔MM 【小区】:金地自在城东苑 【户型】:两室一厅一卫 【面积】:建筑面积64.12 【设计】:渔MM 【风格】:喜欢乡村风格的淳朴自然,努力靠拢 【施工】:江水平装修 【购材】:瑞鑫油烟机+灶具,金顶阳光封闭阳台,华盛第三代一体座便器HTZ1211,圣象地板艾费斯樱桃PK7131,网购布鲁斯特brewster玫瑰庄园墙纸,网购佳德水槽BH03不锈钢厨房水槽双槽14件套,网购
48926450 2020-06-23 21:0711719 22
-
云水间的漫漫装修路
人到中年,想着过慢悠悠的生活,希望居住环境有山有水,鸟语花香,可以慢慢的陪伴家人。于是在2017年1月买的排屋,小区面积1000余亩,以别墅排屋为主,容积率0.7,总体环境非常舒服。排屋是中间套,房产证面积254,后期拆建后估计400左右。现在居住的地方已经安快16年了,想着换换环境就萌生了装修的念头。前期一直在19楼看装修日志和案例,对麦丰公司的案例也比较喜欢,与赵艺哲老师交流了两次感觉也不错,
46123372 2020-04-07 14:558284 22
-
【2020日记大赛】爆改56平老破小
【小区】:大塘新村【户型】:2室1厅1厨1卫【面积】:56平【风格】:自主设计混搭风【施工】:江水平装修【已定主材】:鹰牌瓷砖、科诺地板、安美门窗、楷奇门、明轩石材、好太太五金、特略吊顶。 选择这么多主材是因为自己之前也装修过一套房子跑了很多主材店铺,价格心里基本有一个线,年前就付了定金,一直想找个主材活动一起订购了,一方面为了一点优惠,一方面确实不太想跑遍各个建材市场去订购各种主材。毕竟水太深了
48926290 2020-01-04 20:1317669 22
-
碧玺·美式·187 上班族全包装修之旅
作为夫妻双方都是忙成狗的上班族,严重拖延症的两个人在小区入住率已经80%以上的时候,才下定决心装修。为什么想写装修日记,一个是感觉19楼全包方式写装修日记的不多,可以给以后的朋友参考一下。一个是自己比较健忘,写下来也是一段装修之旅的记录。希望能坚持下去。 第一篇:全包装修公司选定+签约监理(城建装饰+装小蜜第三方监理)(都是邻居推荐的)因为有选择焦虑证,又确实很忙没时间。所以就在邻居群里多方打听有
43512331 2019-04-29 12:565813 21
-
【智汇·家】装修公司,定装修方案
户型方正,基本是满意的,缺陷1.厨房太小,为这事,跑了多家装修公司谋求方案,最后选了品东作为我的装修公司,老板娘搞设计出身,给了若干方案,最后敲定一个令自己觉得比较合适的方案,就是把厨房再缩小几公分,在餐厅靠窗位置加一矮柜,把洗碗机,蒸烤箱放在此柜增加收纳。
45071165 2020-03-31 22:5116114 20
-
上实海上海装修日记贴,期待温馨小家。
跟老公是高中和大学同学,从恋爱到组建家庭,我们一起奋斗,终于有了自己的小家,有了孩子,房子买完之后,手头积蓄所剩无几,装修预算上比较紧张,所以我们想轻装修重装饰,不过一些水管、电线一定要用好的,因为这个维修起来成本费用非常高。 我们在19楼上看了很多作品,收藏了好多喜欢的案例和设计师,就想买衣服一样,喜欢的就点击收藏,等过段时间再去看,还是喜欢那就买,找设计师我也是这个习惯,我收藏自己第一次看到所
37658496 2018-11-27 10:336151 18
-
开始找设计师
买这个房子的目标很明确,就是为了给我女儿上学用的。居住困难:房屋套内面积54.82,正常结构属于一室一厅一厨一卫;原房东将客厅隔出了一个小房间(基本没有窗户)。因为爷爷奶奶在杭州需要帮忙照顾女儿的起居,所以5口人居住一方面比较拥挤,另一方面小朋友长大了需要独立空间,最好能够有个小空间。有没有设计师能够接受挑战的?
33923113 2020-05-26 13:037354 17
-
北干一苑120方 阁楼50方 日系北欧风
在相应国家号召,老二出生后,考虑到居住问题和大宝的学区问题,计划换一套大一点的学区房,由于租过带露台的房子,家人也比较喜欢种花,目标就放在带露台的二手房上面,前期看了几套电梯房带露台的,不是价格超预算太多就是大多数是底商上的露台,一是担心这种露台的使用权归属问题,再则这种露台很多时候都成了高空抛物的垃圾场。 所以后续把目标转移到老小区上,期间中介也带看了几套,在将要放弃的时候碰到了现在的这套二手
28796468 2020-06-28 20:44100737 16
-
My Home~~
27961373 2016-01-19 12:347574 16
标签简介
大家都在讨论"主体拆改"赶紧来看看吧~



