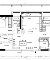
紫薇公寓88方现代 运河河景房(装饰市场|中央空调|三分离卫生间
1个月前 收录
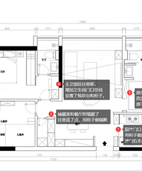
装修第三坑:下水管包管处疑似漏水,拆开后,有一洞下水管检修口疑似漏水,初步怀疑检修口的密封性下水管检修口疑似漏水砸开检修口发现一洞,这个我的要求是更换破损部位的水管,不能接受结构胶、止水带这些补救的方法,这个位置考虑贴砖后做柜子的,如果等后续全部弄好了,再来返工漏水的问题,代价得有多大?目前正在交涉,等待最后的解决方案。@家居小七 @装先生
查看详情>>
阅读:39.2万回复:618
各种小细节的收工
1个月前 收录
阅读:21.3万回复:564




